新生路雅典娜電梯雙車店面

案號
A1394B
用途
型式
類型
地點
嘉義市東區台斗坑段
社區
非社區
建物主面積
96.82坪
建物總面積
104.65坪
附屬建物
7.83坪
土地持分面積
1.07坪
土地主面積
32.49坪
土地總面積
33.56坪
貸款試算 問題諮詢
服務人員謝瑞民
營業員字號: 108登字357834

預約看房0928467558

聯絡信箱as0977265000@gmail.com

詳細資訊

新生路雅典娜電梯雙車店面
總價
5880
車位
不含車位價格
管理方式
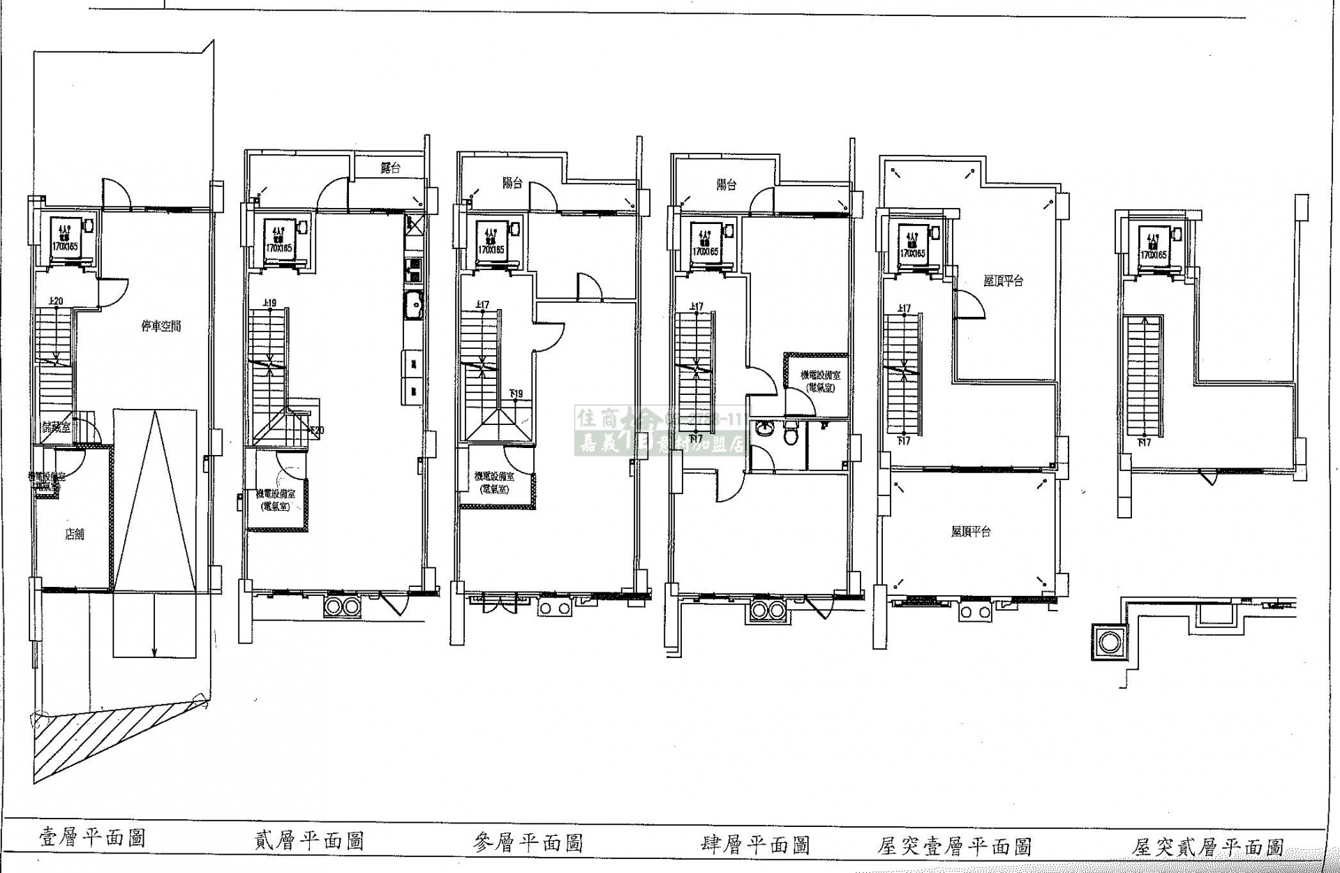
樓層
4/整棟
格局
3房 3廳 4衛
建造完成日期
民國115-09-30年 屋齡約(年)
法拍件
非法拍
電梯

物件資訊內容以登記簿騰本或預售買賣契約為準,若有疑問請洽承辦人員

特色說明

☆近耐斯商圈,人潮就是錢潮
★近嘉北國小,北興國中上學方便
☆正20米新生路旁,大坪數好規劃
★稀有雙車位電梯店面釋出
☆適合診所自用出租皆適宜

服務人員資料

聯絡人員
謝瑞民
所屬公司
嘉義房地產有限公司
品牌名稱
住商檜意村加盟店
營業員字號
108登字357834
公司地址
600嘉義市吳鳳北路344號
電話
052788111
傳真電話
052771000
電子信箱